Ver Tour Virtual
- $55,000,000 MXN En Venta
- 2,868 m² de terreno
Detalles
- Tipo: Terreno
- ID: EB-OF5684
- Clave interna: VTE771
- Antigüedad: A estrenar
- Fondo del terreno: 60 m
- Frente del terreno: 39 m
Descripción
Uso suelo conjunto urbano,
Es un desarrollo de uso mixto.
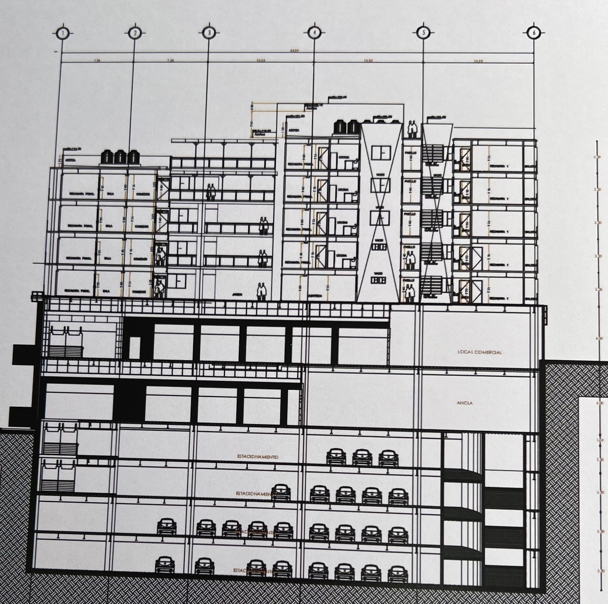
-NIVELES-
15m de profundidad.
Proyecto ejecutivo comercial 2 niveles.
Habitacional 8 niveles.
Total 13 niveles.
-UBICACIÓN-
Localizado en una Avenida Principal,
Colonia Lomas de Atizapán.
La cual da acceso a Zona Esmeralda.
Atizapán de Zaragoza, Estado de México.
Cuenta con una ubicación privilegiada,
1.- Avenida Adolfo Ruiz Cortines.
2.- Avenida Toluca.
Barda y reja por ambos frentes.
-DEMOGRAFÍA-
Zona habitacional clase media tipo C.
Sin embargo, sobre corredor comercial.
Esta proceso de Reciclaje Urbano.
Avenida principal comercios y servicios.
Corredor urbano comercial.
Zona de alta demanda.
Avenida atrás edificios de deptos.
-PROYECTO-
Le denominamos Atizapán Heights.
Proyecto ejecutivo completo.
Con factibiliddades y autorizaciones.
Realizado por firma de arquitectos.
Estudio de mercado correspondiente.
Proyecto del conjunto urbano cumple y
Observa alineamientos.
Como los siguientes.
Coeficientes de ocupación.
Coeficientes de intensidad de altura.
Número de pisos, uso de suelo y
Giros permitidos.
-DESCRIPCIÓN GENERAL-
Complejo uso mixto.
Por entorno demográfico.
1.- 2niveles de locales comerciales.
2.- Nivel banqueta, encima de Podium.
3.- 2 torres de deptos 4 y 5 niveles.
4.- 4niveles estacionamiento en sótano. Total 199 espacios de autos,
5.- Lugares de motocicleta y bicicleta.
-RESULTADO-
Para Integrar formidable Town center.
Logra mejor estilo y calidad de vida.
A residentes y a los comercios.
Para un flujo base de consumidores.
-DEPARTAMENTOS-
Preciosos pisos residenciales.
Unidades de 93m2 hasta 132m2 de área.
-AMENIDADES-
Ludoteca,
Gimnasio,
Salón de usos múltiples,
Asadores,
Juegos de jardín,
Roof top.
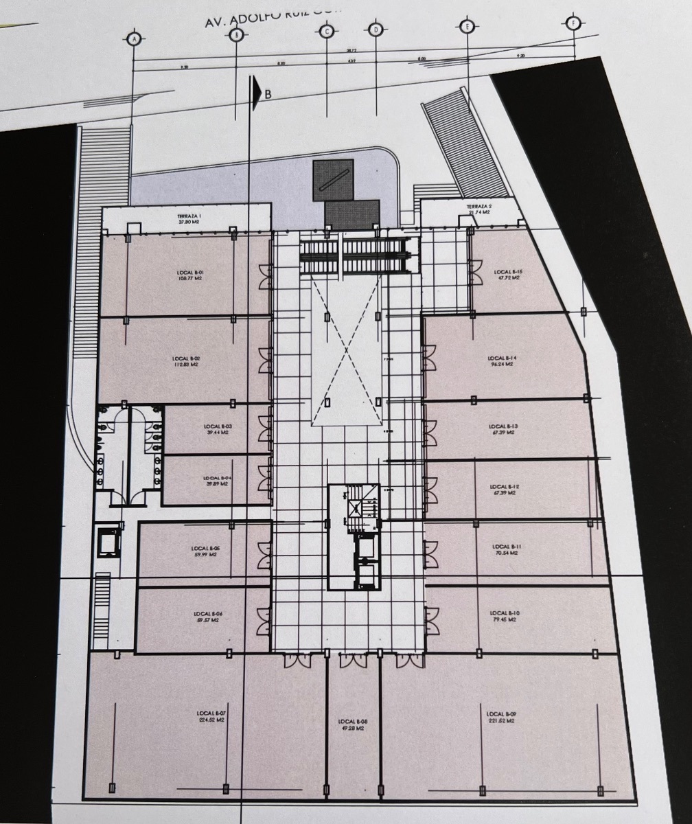
-CENTRO COMERCIAL-
1.- Conformado por 25 locales.
Superficie de 25 m2 hasta 35 m2.
2.- Tienda ancla de autoservicio.
3.- 10 quioscos comerciales.
4.- espacios amplios de circulación.
Atrios y Rampas eléctricas.
Corredores anchos.
4.5 m de altura de piso a plafón.
Dichos pasillos son diferentes anchos.
Lo que permite flujo adecuado.
Comunica internamente toda la plaza y
Construyendo experiencias de compra.
-DISTRIBUCIÓN-
Comunicaciones verticales.
Así como el estacionamiento.
Están perfectamente diferenciados.
Evitando conflictos entre los residentes y Usuarios de centros comerciales.
-DOCUMENTACIÓN-
Tenemos cédula informativa,
Tenemos documentos en regla,
La tabla de densidad por uso de suelo,
Los planos ejecutivos del proyecto,
Memoria de calculo estructural.
Todo en regla.
-PREPARATIVOS-
Ya se ejecutó para albergar.
Los cuatro niveles del sótano y
Se hincaron anclas de flexión.
Para contención del empuje.
De las paredes colindantes.
Todo como preparación para construir.
La Cimentación, La estructura
De los estacionamientos
y eventualmente todo el conjunto.
-MERCADO-
Gran proyecto de inversión inmobiliaria.
Estilo de vida acorde a demanda actual.
Todo diseñado al detalle.
Ambientes con Acabados de lujo.
Gusto exquisito de sus espacios y
Equilibrio c/buena oferta de comercio.
Objetivo de eficientar sus ambientes y
Aprovechando todo al máximo.
Alineamiento normativo de todo estilo,
Sin dudar suma la plusvalía de la zona.
Además de generar fuentes de empleo.
-ENTORNO-
Fraccionamiento, Escuelas y Centros comerciales.
Clave VTE771 Previa cita.
Profesionales inmobiliarios
Expertos locales desde 1967
Asesorando empresarios exitosos.
Amenidades
- Accesibilidad para adultos mayores
- Accesibilidad para personas con discapacidad
- Andén
- Cisterna
- Facilidad para estacionarse
- Garaje
- Jardín
- Parrilla
- Patio
- Roof garden
- Terraza
- Bodega
- Circuito cerrado
- Dos plantas
- Estudio
- Oficina
- Rampas
- Mascotas permitidas
- Permitido fumar
- Fogatero
- Salón de usos múltiples
Ubicación









